二世帯住宅リフォームの進め方|間取りの実例で重要ポイント
-
投稿日:
-
カテゴリー: 二世帯住宅
![]()
両親の日常生活サポートや子育てのために、二世帯住宅を検討している方が近年増加しています。しかし、いざリフォームしようとしても、「どんな間取りにすればいいのか悩む」という方も多いのではないでしょうか?
今回の記事では、二世帯住宅のタイプや必要性、重要なポイントについて解説します。二世帯住宅を検討中の方、将来のために今から考えておきたい方も、ぜひ参考にしてください。
二世帯住宅のタイプ
二世帯住宅はキッチン・風呂・トイレ・玄関が1つずつある「完全同居型」、玄関やトイレを共通で使用し、キッチン・リビングなどを分けた「部分共用型」、玄関もリビングも全てが2つ以上ずつある「完全分離型」の3種類があります。ひとつ屋根の下に同居するといっても、ご家庭によって、考え方は様々ですよね!
「完全にプライベートを分けたい」「風呂やキッチンだけ共同にしたい」「同じ空間で寝起きするくらい近い方が良い」など、ご希望を叶えるために必要なのが、どんな二世帯住宅にするかを決めることです。
種類別のメリットや詳しい特徴、向いているケースなどについては、下記のリンクで詳しく解説しているので、ぜひ参考にしてください。
▶実家を二世帯住宅に!リノベーションor建て替えどっちがおすすめ?)
二世帯住宅のリフォーム例と間取りをご紹介!
ここからは、弊社が実際に施工させていただいた、「完全分離型の二世帯住宅」のリフォーム事例を間取り図とともにご紹介します。
今回の事例は、息子様ご夫婦がお子様を連れて地元へと帰ってくることになったため、「2階部分を丸ごとリフォームしたい」とご相談をいただいた背景があります。目指す姿は、一階部分にご両親、二階部分に息子様ご夫婦が住める二世帯住宅へのリフォーム。施工にあたってポイントとなった点がいくつかございますので、以下に解説しますね。
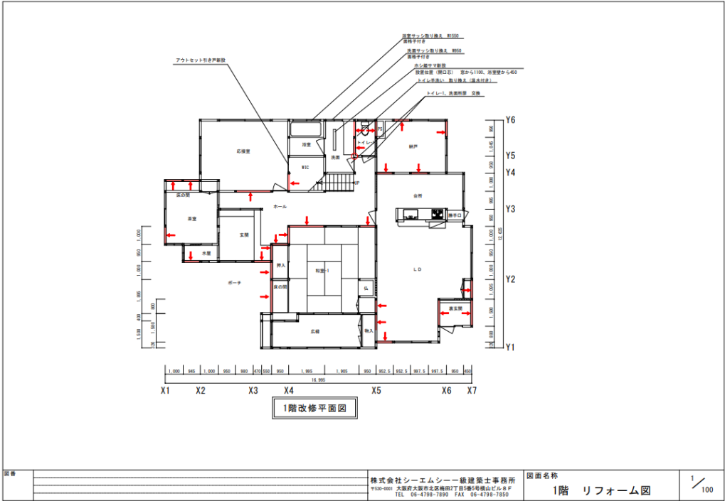
■一階リフォーム図
■二階リフォーム図
各設備を二世帯分用意!
ご両親も息子様ご夫婦も「それぞれがプライバシーを守れるように」とご要望をいただいたため、外から直接二階に上がれる階段と玄関を設けました。その他、トイレ、風呂、リビング、キッチン、寝室、子ども部屋を新たに設置し、一階も二階もそれぞれ独立して生活できるようにしました。
一階と二階がつながる室内階段
完全分離型ではありますが、お互いに何かあった際は、すぐにアクセスできるほうが便利ですよね!そこで、家の中で行き来ができる室内階段をつくることに。こだわりポイントは、廊下の階段設置です。お互いのプライベートを守るという点を大切にし、直接部屋につながるような階段は設置しませんでした。
十分な広さのリビングを確保
一階にはもともと広いリビングがありましたが、二階にはそのような空間はありませんでした。息子様ご夫婦にはお子様もいらっしゃったため、一家が団らんするためには、二階にも十分な広さのリビングが必要だったのです。そこで私たちは、二階の床を23.5畳分増設する提案をしました。結果的に広々とした空間を手に入れられ、お客様にご満足いただけました。
老朽化した柱や壁は全て取り換え
こちらのお客様のお住まいは、茶室があるほど大きく、築年数の古い邸宅でした。二階の水回りを新設し、床を増設する事も考えると、今のままの耐震性では足りないと考えました。そこで、老朽化した柱や壁などは全て取り換え、耐震性をアップ!二世帯が住むのに十分な丈夫さを持つ住まいへとグレードアップさせました。
耐震リフォームは、それ自体に独立した専門知識が必要な分野。二世帯住宅の耐震性を向上させつつ、デザイン性や住み心地の良さを両立させるリフォームに対応できる企業は、実はそう多くはないのです。豊かな知識と経験を持つスタッフが多数在籍する弊社だからこそ、安心安全なリフォームを実現できたと自信を持って言えます。
将来を考えたリフォーム計画も大切
二世帯住宅へのリフォームは、「ただ住み方に合わせて工事をすれば良い」というわけではありません。いずれはご両親の介護が必要になったり、施設に引っ越したりするなど、状況が変わる時期がやってきます。でも、「将来に備えて」といきなり言われても困りますよね。そんな時は、次のような視点で計画を立てるのがおすすめですよ。
バリアフリー対応をしておく
介護が必要になった際を考えて、「車椅子が通れるように廊下を拡幅し、ドアを引き戸にする」「浴室と洗面所の段差を小さくする」「寝室の近くにトイレを設置する」などのバリアフリー対応を事前にしておくとよいです。バリアフリー対応工事は税金控除や補助金が利くので、検討しておいて損はありません!
バリアフリーリフォームに対する減税制度については、下記の記事で紹介しています。ぜひ、ご覧ください。
賃貸併用物件にできるようにしておく
「賃貸併用物件」への変更を見据えた、完全分離型への工事です。これは、ご両親の高齢者施設への入居、お子様が独り立ちなどの際に出る空き部屋を「賃貸住宅として利用できるようにする」というもの。将来、お子様が結婚した際、改めて二世帯住宅としての活用が可能になったり、賃貸収入をローンの支払いに充てられたりとメリットが多く、近年増えているご相談のひとつです。初期費用はかかりますが、完全分離型にしておくと、様々な点で便利なのは間違いありません。
まとめ
今回の記事では、二世帯住宅の種類と、弊社の実例を解説しました。二世帯住宅といえば敬遠しがちな人も多いですが、これは「自分たちの考え方に合う住み方ができる」「将来を考えるとメリットが多い」ことを知らないためです。今回の記事で、少しでも二世帯住宅に興味が生まれた方は、ぜひ一度ご相談ください。![]()


