夫婦で描く、上質で洗練された暮らし
| お客様のご要望 | 理想の暮らしを叶えるならリフォームをと希望されました。耐震性・断熱性・住みやすさに徹底的にこだわり、活かせる部分は残し、浮いた予算で建材や設備をワンランク上にしました。快適性とデザイン性を高めた空間づくり目指し、上質な住まいを実現したいとのご要望でした。 |
|---|
|
施工事例データ
| 住所 | 大阪府羽曳野市 |
|---|---|
| 施工箇所 | LDK・キッチン・ダイニング・浴室・洗面所・トイレ・その他部屋・窓,サッシ・断熱・外壁塗装・屋根塗装・エクステリア・防蟻 |
| 施工内容 | 耐震リノベーション |
| 費用 | 2,200万円(税抜) |
| 工期 | 約120日 |
| 建築年 | 1995年 |
| 種別 | 木造2階建て |
| ご提案内容 | 耐震補強で安全を確保し、断熱窓や床下断熱で省エネ性と快適性を向上。お客様のご要望を反映しデッドスペースを有効活用。対面キッチンにより広がりとお洒落さを演出し、家事動線も改善。さらに建材の質感にもこだわり、安心・快適・暮らしやすさを兼ね備えた住まいをご提案しました。 |
|---|
-
施工前
1階X方向…0.871
1階Y方向…0.426
2階X方向…0.493
2階Y方向…0.525 -
施工後
1階X方向…1.021
1階Y方向…1.039
2階X方向…1.089
2階Y方向…1.050
施工前はこちら
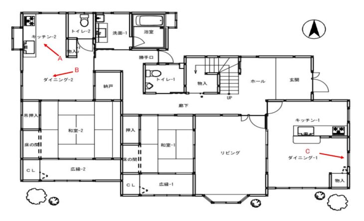
A.綺麗にお使いになられており、新しいキッチンに入れ替えをするのか迷われていました。ショールームに見学に行かれ今のシステムキッチンの良さに驚かれていたのが印象的です。
B.暗めの色で纏まっていたので、リフォームで明るいお部屋にしたいとのご要望がありました。
C.収納スペースや家具の配置の関係で窪んだスペースがありました。有効活用が出来ないか、検討しました。
椅子に立てられたメッセージボードがありました。 忘れてはいけない事やお二人の共通の予定などをメッセージボードに書かれていました。
長年お使いになられたユニットバスです。 お掃除が大変でもう少し明るくなれば良いとの事でした。 お二人の入浴時間に差がある日があるとの事で、冷めにくい浴槽をご希望されていました。
リフォーム前の洗面室です。 洗面台の出っ張りが邪魔だったとの事です。
パース(イメージ画像)はこちら
リフォーム前の平面図

リフォーム後の平面図

施工が完了しました
E.対面キッチンへの憧れを実現致しました。グリーン系で統一し、レールからぶら下がるエアープランツも素敵です。壁紙を貼り分ける事で遊び心たっぷりの可愛い仕上がりになりました。
D.家事の時間もお二人の団欒のお時間に大変身。対面キッチンにするメリットは想像以上ですね。
マグネットの取り付け可能なホーローのキッチンパネル。 タオルかけから鍋ふた置きまで様々な商品があり、上手に利用されています。 (オプションのどこでもラック+山崎実業 towerシリーズを採用) キッチンからリビング リビングから和室へ 広々と開放感なある空間へ大変身です。 床材の色も大切だと感じました。
清潔感のあるホワイトのキッチン。 ホーローで汚れにくいのでお掃除も想像以上に楽だとお喜び。 初め、ホワイトは汚れそうだからと悩まれましたが、清潔に保てているとおっしゃられています。 ショールームアドバイザー様の実演、丁寧な説明を聞かれホワイト系に統一する決心ができたとお喜びです。
F.奥様は旅行雑誌を読まれて、ご主人様はパソコンで検索をするとの前情報があり、そのお二人の時間がより素敵な時間になるように遊び心たっぷりの磁石がつくパネル壁を採用致しました。
F.ご予定を壁に直接記入されたり植物を飾られたり使いこなされています。1番のお気に入りの空間だと嬉しいお言葉をいただきました。
ワークスペースを作り、エマウォールをご提案。 マグネットで壁面にグリーン等を装飾されています。 オプションのどこでもラックを使いこなされ、タブレットを立てられたり写真を飾られたり、これぞエマウォールです。 エマウォールが汚れにくい事を利用してエアープランツを飾られています。 壁に掛けたまま水やりが出来るとビックリ! エマウォールは、実用性もデザイン性も素晴らしい建材だと感じています。 お客様の満足度が凄く高く、ご提案のやりがいが有ります。
今はエマウォールがメッセージボードとなりました。 色々なスペースに書き込みができ、消すのも簡単です。 壁に書けるのは、とても便利だとお喜びいただいています
植物や動物がとてもお好きだとおっしゃっていました。 お庭にくる小鳥を良く眺めるとお伺いしていましたので、鳩をモチーフにした間接照明を装飾しました。 程よく優しい光がエマウォールを包みます。 暗い中で間接照明だけ付けて晩酌されたそうです。 とても素敵な光景です。
カタログでエマウォールのデザインを一緒に探していた時、ムーミンを見られた瞬間「これにしたい!」と即決でした。 キャラクター調査ランキングによると認知度第2位、キャラクター好感度第4位とのことで、幅広い年齢層に好まれるキャラクターのようです。 ムーミンが程よく主張して、仕上がりの際は想像以上に良かったとお喜び頂きました。 角度によってはムーミンが植物の上を歩いているように見えたり、隠れんぼをしているように見えます。 『隠れムーミンを探せ』をテーマにレイアウトされたと嬉しそうにお話頂きました。
お部屋全体が暖かく、断熱窓にすることで断熱性能を向上しました。
洗面化粧台の収納力が上がり洗濯機の位置を変更しました。 少しの変更で脱衣スペースが広がり使いやすくなりました。
落ち着いたデザインの壁は全てホーローで出来ているため汚れにくく清潔に保たれます。 照明も暖色を選ばれ、今までの雰囲気とは変わりました。 より暖かみがあります。 窓は少し小さくして高断熱の窓を設置しました。 床は磁気質タイルにする事で冷たくならず、迫力のある大きなタイルは浴室をお洒落な空間に変えてくれます。 鋳物ホーローの浴槽は冷めにくく高級感があります。
すっきりとまとまり、お手入れも凄く楽になったととてもお喜びです。 取り外しができる鏡もお気に入りとの事です。
リフォームされたお客様の声
建替えを検討しましたが、耐震リフォームで大正解でした!!
安全性と快適性を得て、リビングから眺める四季の庭に心癒やされます。
遊び心あるプランに感動し、妻とワークスペースで過ごす時間が何よりの喜びに!思い出を守りつつ新たな暮らしを得られたことに深く感謝しています。


