茨木市 K様邸 耐震リフォーム事例
| お客様のご要望 | お客様のご両親が建てられた家で、長く空き家になっていましたが、若いお二人の新居に大改修することになりました。 |
|---|
|
施工事例データ
| 住所 | 大阪府茨木市 |
|---|---|
| 施工箇所 | 外壁・リビング・玄関・床 |
| 施工内容 | 耐震リノベーション・内装リノベーション |
| 使用商材 | 床:無垢材 |
| ご提案内容 |
玄関の位置と高さを変え、駐車スペースを確保しました。 道路との段差は、玄関ホールの階段で解消しました。 玄関収納もたっぷり確保し、奥行きと高さのある素敵な空間を作りました。 |
|---|
施工前はこちら
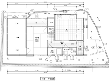
リフォーム前の平面図です。
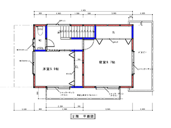
2階の平面図です。
施工中の様子
耐力の落ちた柱と梁をすべて入れ替えました。
無筋のコンクリート基礎だったところは、添え基礎で補強しました。
土間は鉄筋コンクリートで補強しました。
施工が完了しました
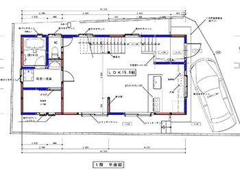
リフォーム後の平面図です。
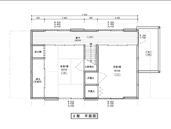
2階の平面図です。
階段の柱は元のままです。
この家が建ったときの事を思い出せるように、家族が集う居間に残しました。
また、すべての床を木のぬくもりと歩き心地を味わえるよう、厚さ18mmの無垢板張りにしました。
この家が建ったときの事を思い出せるように、家族が集う居間に残しました。
また、すべての床を木のぬくもりと歩き心地を味わえるよう、厚さ18mmの無垢板張りにしました。


